QSUB-TDF 44

Genel Specifications

  • Heat Transfer Capacity: 33 – 50 – 65 – 80 kW
  • Maximum Operating Pressure: 16 bar
  • Maximum Operating Temperature: 90 °C
  • Minimum Water Pressure: 0.5 bar
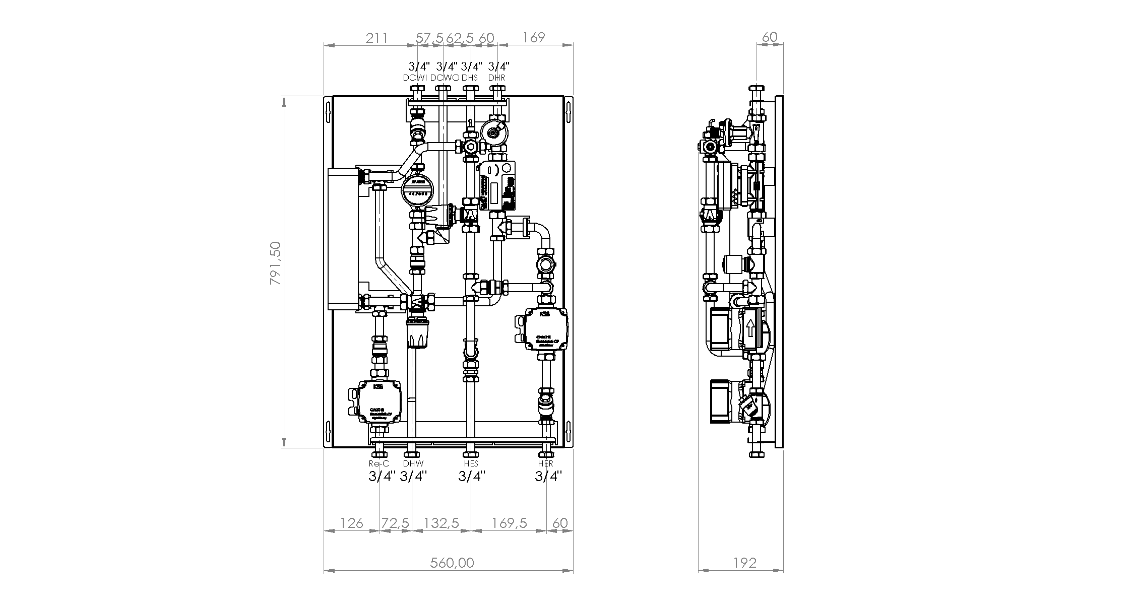
  • Pipe Diameters: Ø 18 mm
  • Connection Size: G ¾”
  • AISI 316L Stainless Steel Piping

Technical Specifications

Send Message
Hello, how can we help you?